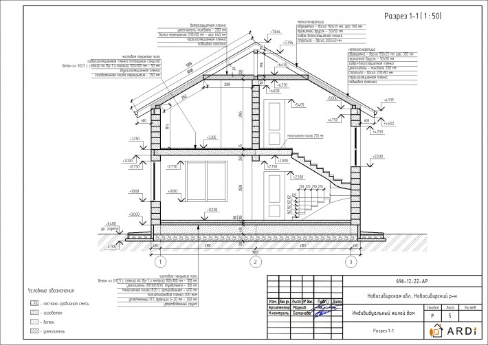
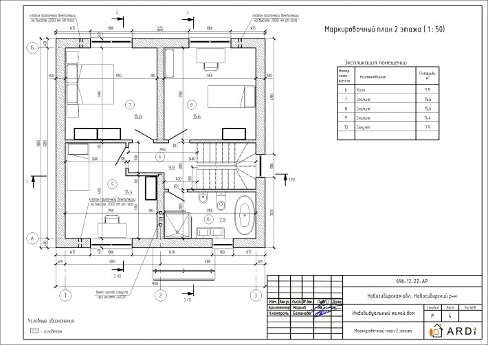
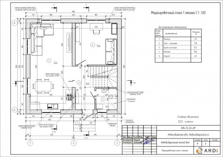
Здание представляет собой двухэтажный жилой дом. В доме запроектированы крыльцо, прихожая, кухня-гостинная, котельная, кабинет, 2 санузла, 3 спальни, холл-прихожая. Кровля дома - двухскатная, с уклоном 30 градусов. Фундамент монолитная ж/б плита.
Выбор местоположения
Мы свяжемся с Вами в течение дня.