Дом сдается в отделке white box. Гипсовая штукатурка Knauf под обои.
Характеристики:
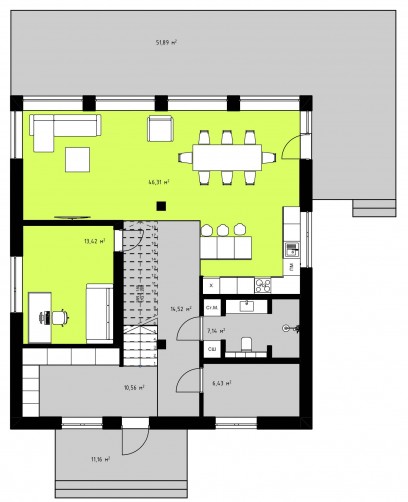
Дом: 167,4м2 (полезная площадь, без террасы и крыльца),
● Потолки 2,85 -5,7м2;
● 4 спальни
● Кухня-столовая 40,31м2;
● 2 санузла;
● Котельная 6,43м2;
комплектация «тёплый контур» стоимость по запросу
Комплектация «white bох» от 22 300 000 р.
Выбор местоположения
Мы свяжемся с Вами в течение дня.