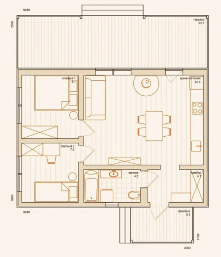
Одноэтажный дом для постоянного проживания 2-3 человек. Конструкция собирается из трех модулей. Помимо дома, в комплектацию входят крыльцо и терраса. Общая площадь составляет 76,1 м2.
Расчет условий не является публичной офертой. Финальные условия кредитования определяются при заключении договора.
Существеннные условия
Информация
В Россельхозбанке есть возможность каждому
из супругов взять по сельской ипотеке, чтобы
приобрести один объект недвижимости. Это
позволит увеличить сумму кредита и приобрести
объект большей стоимостью. Первоначальный взнос
по такой программе от 20% по каждому кредиту.
Оформить две ипотеки на супругов можно в офисе Банка.
Заявка на консультацию
График платежей
Ипотечная программа
Сумма кредита
Срок кредита
Ставка
Аннуитетный
Дифференцированный
Оба платежа
Месяц и год
Платеж
Проценты
Основной долг
Остаток долга
Месяц и год
Платеж
Проценты
Основной долг
Остаток долга
Аннуитетный
Месяц и год
Платеж
Проценты
Основной долг
Остаток долга
Переплата
₽
Дифференцированный
Месяц и год
Платеж
Проценты
Основной долг
Остаток долга
Переплата
₽
*Расчет параметров ипотечного кредита является предварительным
Информация о первоначальном взносе
В некоторых случаях, при превышении разницы между стоимостью недвижимости и минимальной суммой первоначального взноса - максимальной
суммы кредита, первоначальный взнос может быть увеличен до размера, удовлетворяющего условиям ипотечной программы.