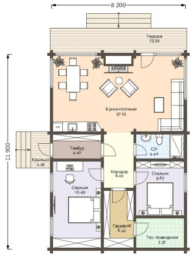
Идеальный дом для загородной усадьбы, в котором небольшая семья будет проводить выходные и праздники. Комплектация дома полностью готова к круглогодичному проживанию с комфортом: электрический котёл, водяные теплые полы, п\с стяжка, электрика, сантехника, вентиляция, качественные окна и входная дверь.
Дом по каркасной технологии: сваи 108мм - под домом, 89мм - под терассой. Каркас из сухой строганной доски, стыки утеплены, составые доски проклеены. Утеплитель "Лотэкс" из полиэфирного волокна (не имеет усадки, срок службы <50 лет). Пароизоляция 200мкм, стыки проклеены скотчем Delta. Ветрозащита Ondutiss Pro AM 150, внутрення отделка - гипсокартон. Кровля 0,5 мм. Окна: профиль - Veka, фурнитура - Maco. Дверь входная с тройным уплотнителем и терморазрывом. Теплый пол по всему контуру дома, полусухая стяжка 8мм, ламинат (3 цвета на выбор). Бойлер и электрический котёл. Водоподведение и разводка сантехники. Вся электрика и вентиляция для вашего удобства.
Выбор местоположения
Мы свяжемся с Вами в течение дня.