Дом SWB-110 №728

Цена строительства от 4 150 000 ₽* * Стоимость не является окончательной
Заявка на консультацию
  • Общая площадь 108 м2
  • Длина 14.5 м
  • Ширина 11.3 м
  • Материал стен Клеенный брус
  • Количество этажей 1
  • Подвал Нет
  • Мансарда без мансарды
  • Гараж Нет
  • Терраса Да
  • Проживание Круглогодичное
  • Количество комнат 3
  • Количество спален 2
  • Количество санузлов 1
  • Вид проекта дом
  • Застройщик Сибвуд
  • Архитектурный стиль Скандинавский
  • Крыша Двускатная
  • Можно купить домокомплект Нет
  • Модульный тип строения Нет
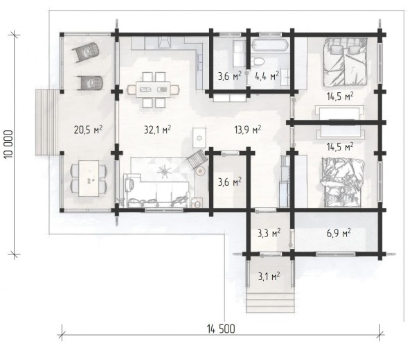
Планировки
Описание проекта

Одноэтажный дом — это уютное пространство для жизни в гармонии с природой. Его компактная планировка и тёплые деревянные стены создают атмосферу спокойствия и тепла, идеальную для семьи и отдыха.

Дом отлично подойдёт как дача или постоянное жильё для небольшой семьи. Просторная гостиная с кухней и столовой объединяет зоны отдыха и общения, а большая терраса становится продолжением дома — местом для завтраков на свежем воздухе и вечерних бесед.

Спальни светлые и уютные, с окнами, выходящими в сад. Натуральные материалы, большие окна и близость к природе делают каждый день особенным. Здесь легко дышится, здесь не слышно городской суеты.

Дом прост в строительстве и эксплуатации, но при этом — функциональный и тёплый. Он подходит для тех, кто ценит близость к природе.

Это не просто жильё — это место, где собирается семья, где отдыхают душой и телом.

Тепло, природа, уют — всё, что нужно для настоящей жизни.

Вас может заинтересовать
Вас может заинтересовать

Выбор местоположения

Задать вопрос / написать нам

E-mail: domgis@mail.ru

Мы свяжемся с Вами в течение дня.

Тех. поддержка
Предмет обращения:
Тукущая страница

Мы свяжемся с Вами в течение дня.

Уведомление
Предмет обращения:
Тукущая страница
Обратный звонок
Обратный звонок
Выберите ваш город
Пожаловаться

Объявление опубликовано.
Изменения сохранены

Период публикации - бессрочный, при условии подтверждения актуальности каждые 50 дней. Уведомления будут отправляться на Вашу электронную почту.

Выберите причину снятия с публикации

Снятые с публикации объявления не участвуют в поиске и недоступны для подробного просмотра.

Для повторной публикации нажмите «Вернуть в публикацию»