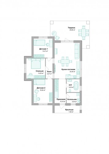
Стильный дом с плоской крышей и террасой. Отделка дома выполнена из штукатурки с деревянными вставками из планкена. Большие панорамные окна в каждой комнате обеспечивают естественное освещение и открывают вид на окружающий ландшафт, а большая терраса может стать местом для проведения семейных праздников, вечеринок с друзьями или отдыха на свежем воздухе.
Дом подходит для проживания семьи из 3-5 человек. Здесь расположены просторная кухня-гостиная с выходом на террасу, три спальни, а также изолированный от спален санузел, что позволит сохранить покой и сон домочадцев.
Площадь прихожей рассчитана на организацию большого места хранения вещей. Этот дом для тех, кто выбирает комфорт, стиль и функциональность.
Фасад - декоративная штукатурка
Комплектация STANDART - 8 550 000 р.
Комплектация WHITE BOX - 10 200 000 р.
Выбор местоположения
Мы свяжемся с Вами в течение дня.