Одноэтажный дом с двускатной крышей и «вторым светом».
Фасад дома сочетает в себе отделку декоративной штукатуркой, деревянные вставки и панорамное остекление. Угловая терраса дополняет образ загородного дома, где можно насладиться отдыхом на природе с семьей и друзьями.
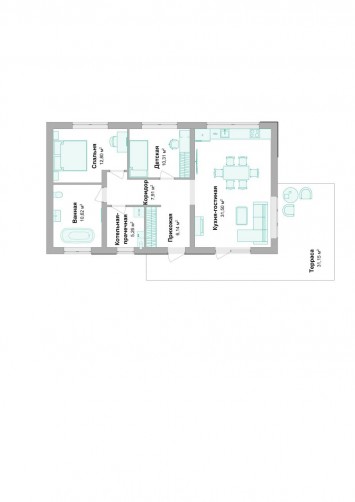
Дом предназначен для небольшой семьи. Внутреннее пространство дома функционально спланировано и разделено на две спальни, просторные кухню-гостиную и ванную комнату. Потолок в гостиной имеет переменную высоту от 2,9 до 4,5 м, а соразмерное окно создает ощущение простора и воздуха в помещении и сравнимо со «вторым светом». Этот проект идеально подойдёт для всех, кто предпочитает простые, функциональные и экономичные решения при выборе дома.
Фасад - декоративная штукатурка
Комплектация STANDART - 6 650 000 р.
Комплектация WHITE BOX - 8 000 000 р.
Фасад - облицовочный кирпич
Комплектация STANDART - 7 050 000 р.
Комплектация WHITE BOX - 8 400 000 р.
Выбор местоположения
Мы свяжемся с Вами в течение дня.