Смарт №106

Цена строительства от 9 950 000 ₽* * Стоимость не является окончательной
Заявка на консультацию
  • Общая площадь 117 м2
  • Длина 13 м
  • Ширина 9 м
  • Материал стен Кирпич
  • Количество этажей 2
  • Подвал Нет
  • Мансарда без мансарды
  • Гараж Нет
  • Терраса Нет
  • Проживание Круглогодичное
  • Количество комнат 4
  • Количество спален 3
  • Количество санузлов 3
  • Вид проекта дом
  • Застройщик БауАртЭстетика
  • Архитектурный стиль Голландский
  • Отделка фасада Лицевой кирпич
  • Крыша Мансардная
  • Можно купить домокомплект Нет
  • Модульный тип строения Нет
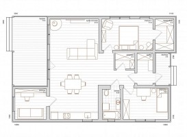
Планировки
Описание проекта
Проект «Смарт» - компактный, стильный дом, выдержанный в голландском стиле. Он рассчитан на семью от 2-х до 6 человек. В 117 м²; есть всё для создания уютной семейной обстановки: просторная кухня-гостиная, спальные и детские комнаты, несколько санузлов и отдельные гардеробные.
Данный тип дома — идеальное решение для участков небольшой площади. Дом имеет гибкую планировку, которая позволяет создать несколько сценариев для жизни.

Вас может заинтересовать
Вас может заинтересовать

Выбор местоположения

Задать вопрос / написать нам

E-mail: domgis@mail.ru

Мы свяжемся с Вами в течение дня.

Тех. поддержка
Предмет обращения:
Тукущая страница

Мы свяжемся с Вами в течение дня.

Обратный звонок
Обратный звонок
Выберите ваш город
Пожаловаться

Объявление опубликовано.
Изменения сохранены

Период публикации - бессрочный, при условии подтверждения актуальности каждые 50 дней. Уведомления будут отправляться на Вашу электронную почту.

Выберите причину снятия с публикации

Снятые с публикации объявления не участвуют в поиске и недоступны для подробного просмотра.

Для повторной публикации нажмите «Вернуть в публикацию»